
"El Ayuntamiento de Totana a través de la externalización del servicio prestado de la piscina municipal por la Concejalía de Deportes, permitirá la mejora en las instalaciones deportivas así como un incremento en la calidad y el número de actividades y servicios ofertados a la ciudadanía", según ha informado el concejal de Deportes, José Antonio Valverde Reina.
Esta iniciativa, que será debatida en el Pleno del Ayuntamiento el próximo martes 29 de julio, se enmarca en el paquete de medidas de ahorro dirigidas a sanear las arcas municipales que se encuentran en las directrices recogidas dentro del Plan Económico-Financiero que aprobó la corporación el pasado 31 de julio.
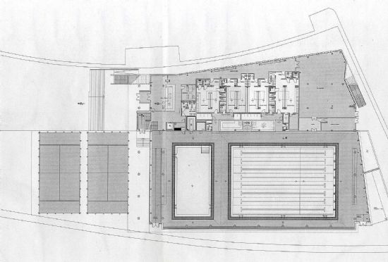
Así, el Ayuntamiento de Totana, solicitará a la empresa adjudicataria de este servicio la inversión de 1.000.000 de euros, que irán destinados a la construcción de nuevas instalaciones dentro y fuera del recinto así como a la mejora de las ya existentes.
En este sentido, el edil anunció que este proyecto contempla la construcción de dos pistas de pádel en una parte del actual aparcamiento, una sala de ciclyng con 30 bicicletas, una sala de cardio, una sala de peso, una sala polivalente y una de actividades dirigidas, también zona de bar, solarium, un spa acorde con las últimas tecnologías y novedades, y una zona de baño turco y sauna.
Las obras tendrán un plazo de ejecución de entre 3 y 6 meses, y según ha adelantado el edil, se llevará a cabo a partir del mes de septiembre 2008 hasta marzo 2009.
Al respecto, ha anunciado que estas obras no paralizarán ni obstaculizarán el “normal y buen” funcionamiento de la piscina municipal cubierta durante la temporada de otoño-invierno.
Además, ha manifestado su satisfacción por la adopción de esta medida, ya que se “garantizarán los puestos de trabajo”, ya que además de mantener contratado al personal ya existente, al incrementar el número de servicios y actividades prestadas se tendrá que ampliar el número de contrataciones, que serán llevadas a cabo por la empresa adjudicataria.





